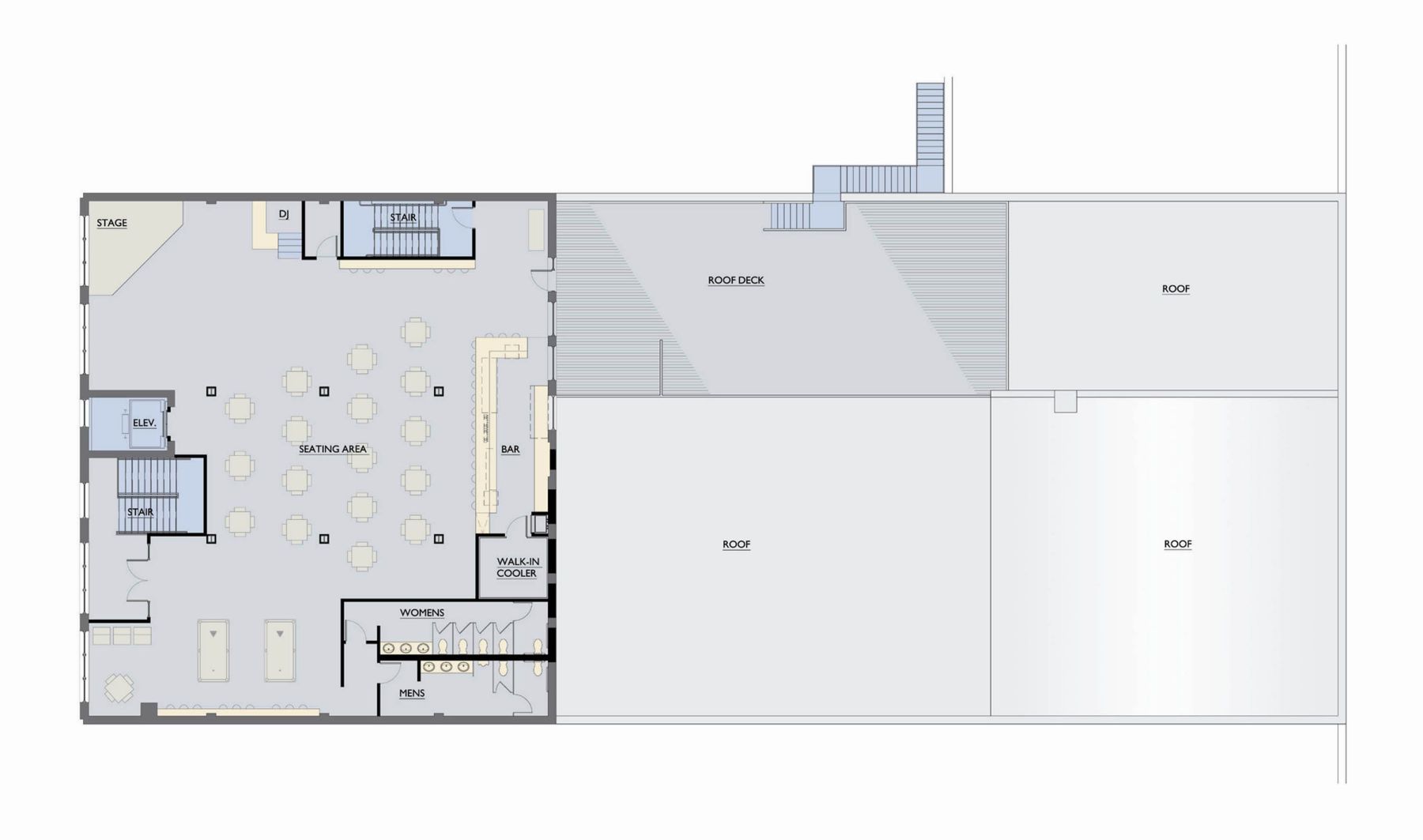
• WDN Architecture converted 18,000 square feet of near west Chicago warehouse space into a two story dining, drinking and entertainment venue. The building includes two stages, three bars, commercial kitchen and a roof deck with sweeping views of Chicago's skyline.

  • First Floor

  • Second Floor

The Bottom Lounge, Chicago