• Chicago Warehouse Conversion

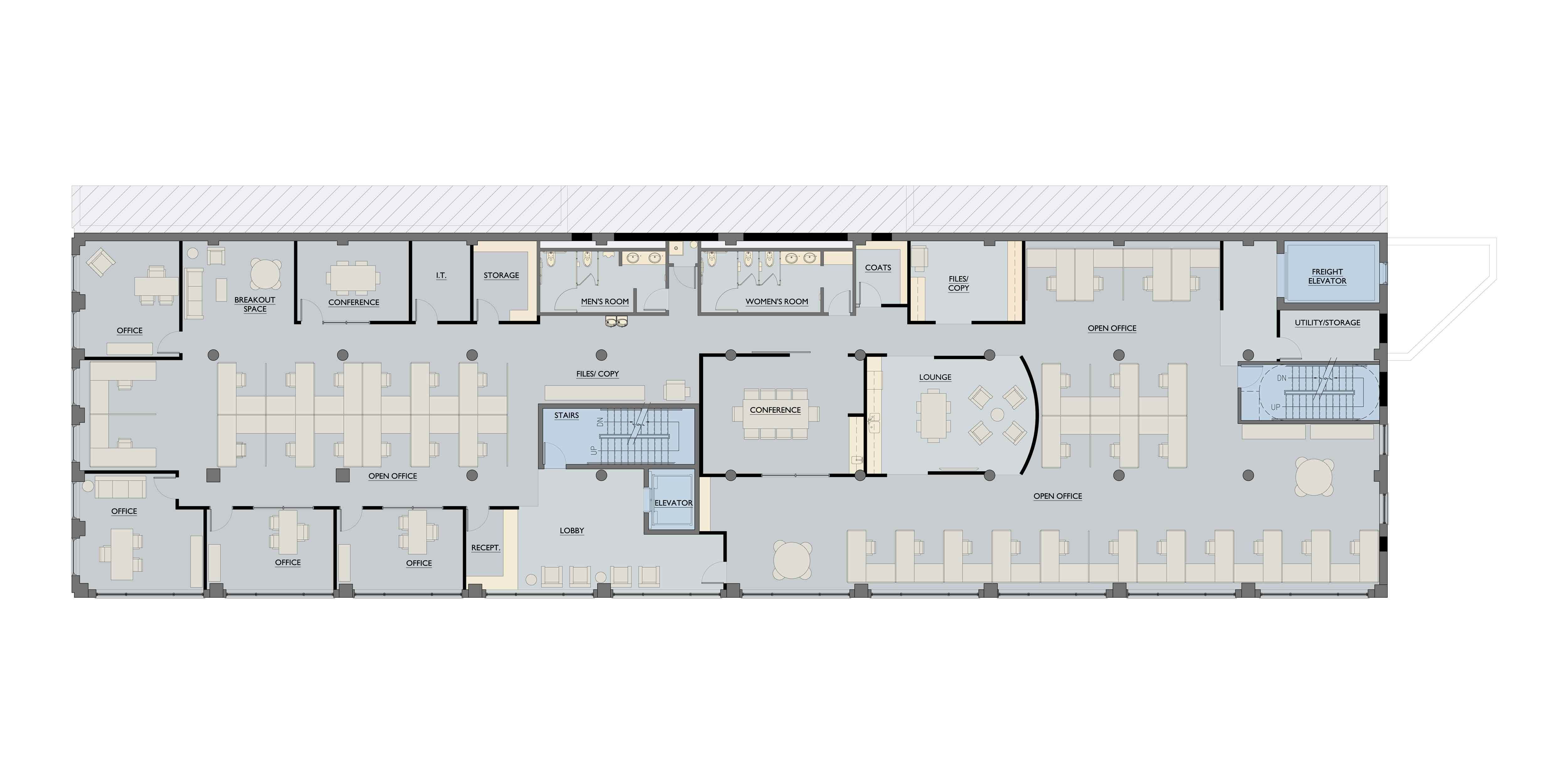
    This 4 story plus basement warehouse was converted into a modern office building with new stair and elevator cores to serve the new tenant spaces. Expansive windows and a new entry were added to the west elevation. The new elevator also serves a new roof deck with spectactular city views.

  • In Progress

  • In Progress

  • Typical Lobby

  • New Roof Deck

  • New Roof Deck

  • Typical Office Layout

  • 3-D office study

  • Before

West Loop Warehouse Conversion, Chicago